About 639 CORNWELL ON THE GULF, Venice, Florida, 34285
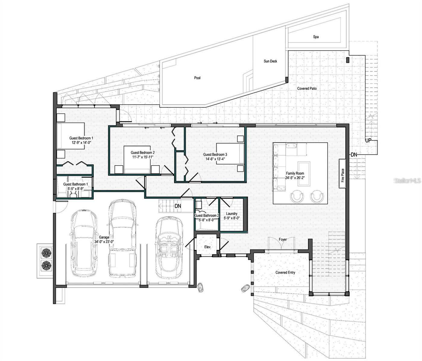
One or more photo(s) has been virtually staged. Pre-Construction. To be built. The Price is for the Lot, plans and all approved permitting to create shown structure - Live beyond the horizon at Cornwell on the Gulf - one of the final, truly rare opportunities to claim over an acre (1.2 Acres) of direct Gulf-front land on Venice’s iconic coastline. Boasting approximately 105 feet of private beachfront frontage, this extraordinary parcel offers the freedom to create a private luxury compound that captures the essence of coastal living: architectural artistry, seamless indoor-outdoor spaces, and an intimate connection to the sea that fewer and fewer properties can ever replicate. The land itself is generously sized, quietly positioned, and zoned for residential single-family development under the current local zoning classification. The expansive dimensions support a dream-worthy layout: a grand residence with panoramic water views, detached guest quarters, infinity-edge pool overlooking the Gulf, outdoor kitchens, fire features, rooftop terraces, and private pathways leading directly to the sand. With over 100 feet of pristine beachfront and a buildable acreage well suited for custom single-family living, this is a blank canvas where luxury, privacy, and nature exist in perfect harmony. For buyers seeking both vision and momentum, the property includes architecturally stunning, fully designed plans with active approvals and permits already in place—a significant advantage in today’s environment of rising construction costs and extended review timelines. These plans thoughtfully blend modern elegance with coastal simplicity, maximizing view corridors, natural light, and functional livability. They streamline the build process while still allowing meaningful customization, giving you the best of both worlds: an accelerated timeline toward breaking ground, and the ability to imprint your personal aesthetic. Utilities to the site are ready to go: the lot has access to city water and sewer and is pre-plumbed for modern amenities; electric and other utility hookups are available and mapped in the approved plans. That reduces the complexity and added cost sometimes associated with beach-front builds, allowing a smoother, more predictable path to your finished residence by the sea. Located just moments from historic downtown Venice, Sharky’s, and the South Jetty, the property offers a rare balance of serenity and accessibility. Enjoy boutique shopping, waterfront dining, cultural events, and a charming coastal lifestyle, all from a private sanctuary that feels worlds away. Cornwell on the Gulf isn’t just a piece of land; it’s a once-in-a-generation opportunity to create something enduring, exquisite, and deeply personal. Whether you build a visionary estate from the ground up or bring the existing plans to life with ease, this property invites you to craft a lifestyle defined by beauty, privacy, and the infinite luxury of the waterfront. Seller is open to holding the note, in first position, for respectful and acceptable terms.
Utilities : Cable Available
Water Access : 1
Sewer : Public Sewer
Exterior Features : None
Lot Features : Cleared
Road Surface Type : Brick
Zoning : RSF3
Heating : Central
Cooling : Other
Interior Features : Other
Laundry Features : Laundry Room
Appliances : Other
Flooring : Other
Utilities : Cable Available
Water Access : 1
Sewer : Public Sewer
Exterior Features : None
Lot Features : Cleared
Road Surface Type : Brick
Zoning : RSF3
Heating : Central
Cooling : Other
Interior Features : Other
Laundry Features : Laundry Room
Appliances : Other
Flooring : Other

Street Address: 639 CORNWELL ON THE GULF
City: Venice
State: Florida
Postal Code: 34285
County: Sarasota
Directions: Driving westbound on Venice Avenue, turn left onto Harbor Drive South, turn right onto Alhambra Road, turn left onto Park Blvd South, then turn right onto Cornwell on the Gulf. The property will be all the way at the end of the road on the left.

Property Information :
Listing Status: Withdrawn
Size: 4,674 Sqft
Lot Size: 1.02 Acres
MLS #: A4673433
Bedrooms: 4 bd
Bathrooms: 3.5 ba
Price: $4,050,000
Tax Amount: 36744
Construction Status: Built in 2026
Last Modified : Dec 13 2025 2:20AM

Courtesy of: Mark Klecka, COLDWELL BANKER REALTY (MLS# 281502380)
Source MLS: StellarMLS