About 12917 295th Avenue, Princeton, Minnesota, 55371
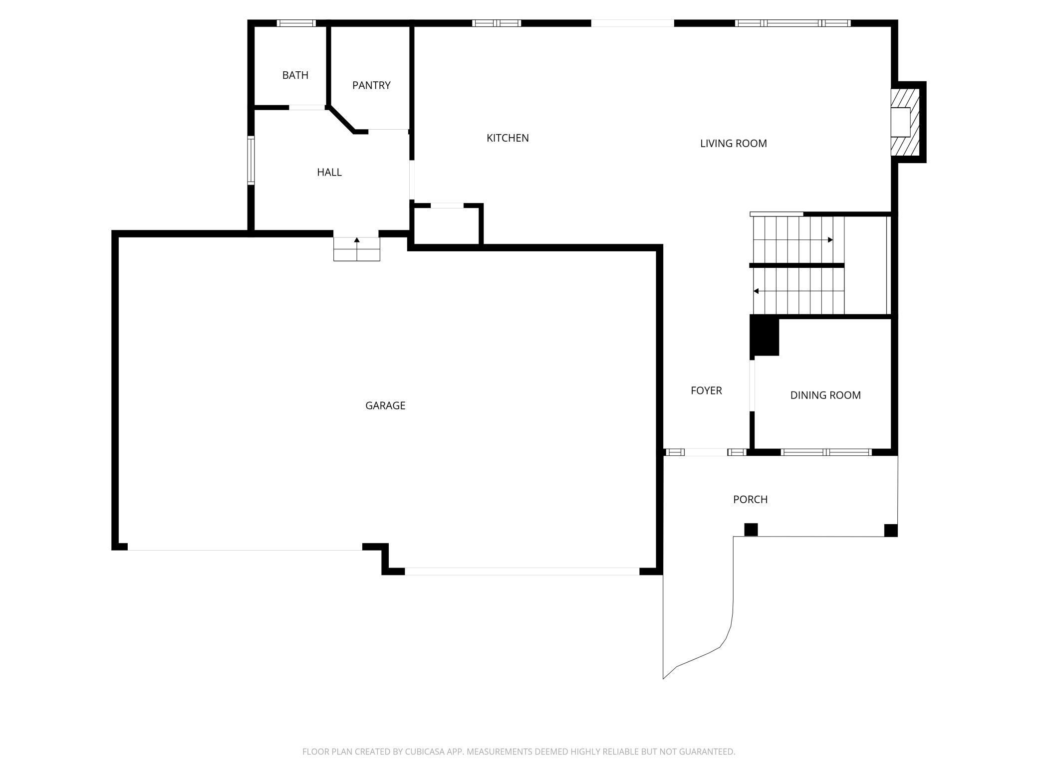
4.91-acre homesite • ICM Homes • Walkout lower level • Under Construction-April Completion Home has completed sheetrock and available to view! Modern country living awaits on nearly five acres with a newly designed 5-bedroom, 4-bath home offering quality construction, premium materials, and wide-open outdoor space with no HOA restrictions. Built by ICM Homes, includes Andersen windows, LP SmartSide front elevation, upgraded finishes, and a layout created for everyday function. The north-facing front provides a sheltered entry, while the south-facing backyard offers all-day natural light and outdoor living potential. The open-concept main level features upgraded laminate flooring, custom cabinetry, quartz countertops, and stainless-steel appliances. The kitchen includes a center island, soft-close drawers, and a walk-in pantry. Adjacent dining area overlooks the acreage and connects to future deck or patio space. A main-level half bath and direct access to the insulated 4-stall garage (40×23) with asphalt driveway complete the main floor. Upper level includes four spacious bedrooms, laundry, and two full baths, including a primary suite with walk-in closet, quartz dual vanity, and upgraded finishes. The finished walkout lower level adds flexible living space with a family room, bedroom, 3/4 bath, and areas suitable for office, gym, or guest use. Efficient forced-air heating, central air, and durable materials provide long-term comfort. A landscaping allowance is included for customization of outdoor areas. The 4.91-acre setting allows room for future outbuildings, gardens, and recreation, with no HOA restricting land use. Located in Baldwin Township with convenient access to local amenities, parks, and daily necessities. ˜ 1.2 mi to Highway 169, ˜ 4.5 mi to Princeton retail corridor, ˜ 3.5–4.5 mi to downtown Princeton, ˜ 6.5–7.0 mi to Sherburne National Wildlife Refuge, ˜ 3–6 mi to Rum River access points, ˜ 5.5 mi to Princeton Golf Course, and ˜ 3.5–5 mi to dining and coffee options along the Hwy 169/Princeton corridor. This To-Be-Built home combines acreage, privacy, modern design, and new-construction advantages in a setting ideal for open space, hobbies, or future expansion. Plans, finishes, and build timeline available from ICM Homes; inquire for feature sheet and design package.

Street Address: 12917 295th Avenue
City: Princeton
State: Minnesota
Postal Code: 55371
County: Sherburne
Directions: N Hwy 169 from Zimmerman, W on CR 9, N on 131st, W on 295th

Property Information :
Listing Status: Active
Size: 3,154 Sqft
MLS #: 6817205
Bedrooms: 5 bd
Bathrooms: 2.5 ba
Price: $749,900
Tax Amount: 270
Construction Status: Built in 2026
Last Modified : Feb 24 2026 2:44AM

Courtesy of: , John Thomas Realty (MLS# NST40077)
Source MLS: NorthstarMLS