About 603 N 2200 E, Preston, Idaho, 83263
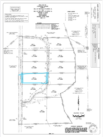
SELLER FINANCING is available. These lots are exceptional! They are each part of the newly developed Cottonwood Estates Subdivision along Lamont Reservoir. Lot 3 has amazing views of the mountains, lake, and valley. The property is mostly flat so it should be easy to build on. It is very close to the lake so you can enjoy all the beauty and recreational opportunities that Lamont Reservoir has to offer. The property is close to the water, the mountains, and it's only a few minutes outside of the town of Preston. The road leading to the property is currently gravel, but it will be paved this year. This lot has had power stubbed and has passed a PERC test for septic. You will need to drill a well. Lot 3 is not waterfront, but additional lakefront land is available.
Utilities : Power: Stubbed
Lot Features : Additional Land Available, Terrain: Grad Slope, View: Lake, View: Mountain, View: Valley, Terrain: Flat, Horse Property
Property Condition : Blt./Standing
Current Use : Residential
Single-Family
Zoning Description: RES
Topography : Terrain: Flat, Terrain: Grad Slope
Utilities : Power: Stubbed
Lot Features : Additional Land Available, Terrain: Grad Slope, View: Lake, View: Mountain, View: Valley, Terrain: Flat, Horse Property
Property Condition : Blt./Standing
Current Use : Residential
Single-Family
Zoning Description: RES
Topography : Terrain: Flat, Terrain: Grad Slope

Street Address: 603 N 2200 E
City: Preston
State: Idaho
Postal Code: 83263
County: Franklin

Property Information :
Listing Status: Withdrawn
Lot Size: 2.10 Acres
MLS #: 2022402
Price: $229,000
Tax Amount: 50
Last Modified : Sep 12 2025 3:48AM
Amenities :
View

Courtesy of: Jocelyn Smith, Equity Real Estate - Bear River (MLS# 71362)
Source MLS: WFRMLS