About 1387 River Club Ridge, Lenoir, North Carolina, 28645
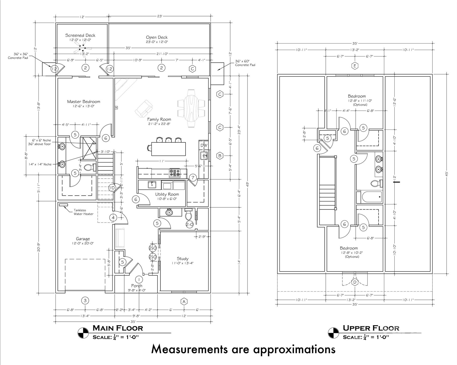
New construction, beautiful 3 BR 2 and half BA home in The River Club Cottage section of The Coves. Built by Moss Marlow Bldg Co., this home is 1 of the last 2 new homes built in the Cottages. Perfect for empty nesters, down-sizing, 2nd home. Spacious open floor plan, great room with stone fireplace, large kitchen island, walk-in pantry, dining area, and beautiful view of the Catawba River Valley and surrounding mountains on the horizon. Primary ensuite bedroom, laundry room, office on main level. Upstairs, 2 BR, 1 BA. Enjoy views from anywhere in the home, including the screened porch and large concrete deck. Lawn maintenance included. Miles of community trails, right outside your door, to hike, bike, ride horses, or UTVs. Kayak, fish 5 miles of Johns River on site. Community garden & vineyard. Clubhouse has fitness center, pool, fire pits, 360º mountain views. Dog park, 2 equestrian centers, pickleball. Mins to Blowing Rock, Lenoir, Blue Ridge Pkwy. 1.25 hr to Asheville/Charlotte.
Room Count : 11
Water Source : Shared Well
Sewer System : Shared Septic
Community Features : Clubhouse
Parking Features :
Lot Features : Open Lot
Road Surface Type : Concrete
Architectural Style : Cottage
Heating : Central
Construction Type : Site Built
Construction Materials : Hardboard Siding
Foundation Details: Slab
Interior Features : Kitchen Island
Fireplace Features : Gas Log
Laundry Features : Laundry Room
Appliances : Dishwasher
Main Area : 1411 S.F
Room Count : 11
Water Source : Shared Well
Sewer System : Shared Septic
Community Features : Clubhouse
Parking Features :
Lot Features : Open Lot
Road Surface Type : Concrete
Architectural Style : Cottage
Heating : Central
Construction Type : Site Built
Construction Materials : Hardboard Siding
Foundation Details: Slab
Interior Features : Kitchen Island
Fireplace Features : Gas Log
Laundry Features : Laundry Room
Appliances : Dishwasher
Main Area : 1411 S.F

Street Address: 1387 River Club Ridge
City: Lenoir
State: North Carolina
Postal Code: 28645
County: Caldwell

Property Information :
Listing Status: Active
Size: 2,063 Sqft
Lot Size: 0.11 Acres
MLS #: 4156578
Bedrooms: 3 bd
Bathrooms: 2.5 ba
Price: $679,900
Construction Status: New Construction
New Construction: Yes
Last Modified : Dec 10 2025 3:11AM
Amenities :
Fireplace

Courtesy of: Jennifer Shattuck, Arrow Realty & Land Development (MLS# CARCV90961)
Source MLS: CanopyMLS