About 95 W Grand, Lake Villa, Illinois, 60046
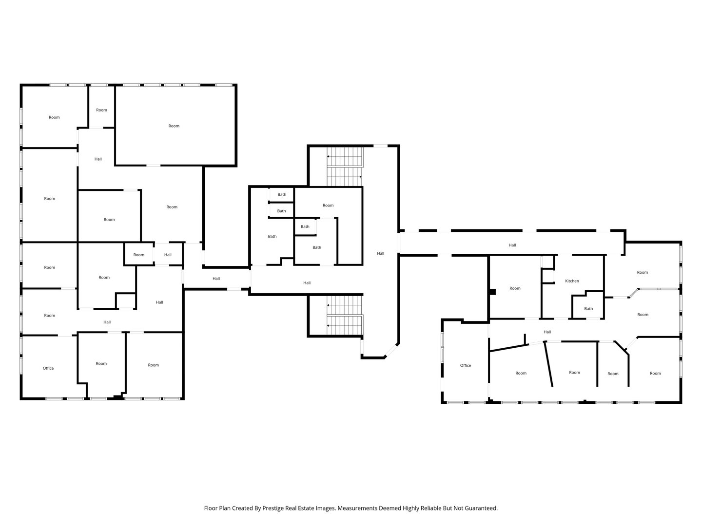
Cedar View Plaza Office Building (14,000 square feet and warehouse 1,280 square feet) being sold by original builder after 40 plus years ownership! This brick and frame professional office building offers lots of flexibility to lease space. Originally constructed for medical office the building has evolved into professional/service businesses. Most offices have natural light from large windows. Hallways have fresh paint and carpeting. Common area tile bathrooms on first and second floors. Climate controlled building has 4 newer rooftop units for heat. Newer GacoFlex roof coating. Tenants pay individual office electric while Landlord pays heat, air conditioning, sewer and water. Tenants can walk to downtown Lake Villa restaurants, bars and METRA station. Ample parking. Includes block 32x40 garage with fenced in material yard on over one acre of land. Original builder/owner looking to retire. Long time tenants include Air Technicians, Brooks Allen and Business to Business. Lake Villa may allow conversion of second floor to apartments. Financials upon request and NDA. Please allow 24 hours for showings. Call for available office spaces.
Water Source : Municipal Water
Electric : Separate Meters
Cooling: Central Air
Construction Materials: Brick
Water Source : Municipal Water
Electric : Separate Meters
Cooling: Central Air
Construction Materials: Brick

Street Address: 95 W Grand
City: Lake Villa
State: Illinois
Postal Code: 60046
County: Lake
Directions: Route 83 & Grand Avenue, West to Cedar View Office building

Property Information :
Listing Status: Active
MLS #: 12518331
Price: $779,000
Tax Amount: 18260
Construction Status: Built in 1980
Last Modified : Dec 16 2025 1:02AM

Courtesy of: Frank Robert, Robert E. Frank Real Estate (MLS# 2412)
Source MLS: MRED