About 747 Tulip Grove Rd, Hermitage, Tennessee, 37076
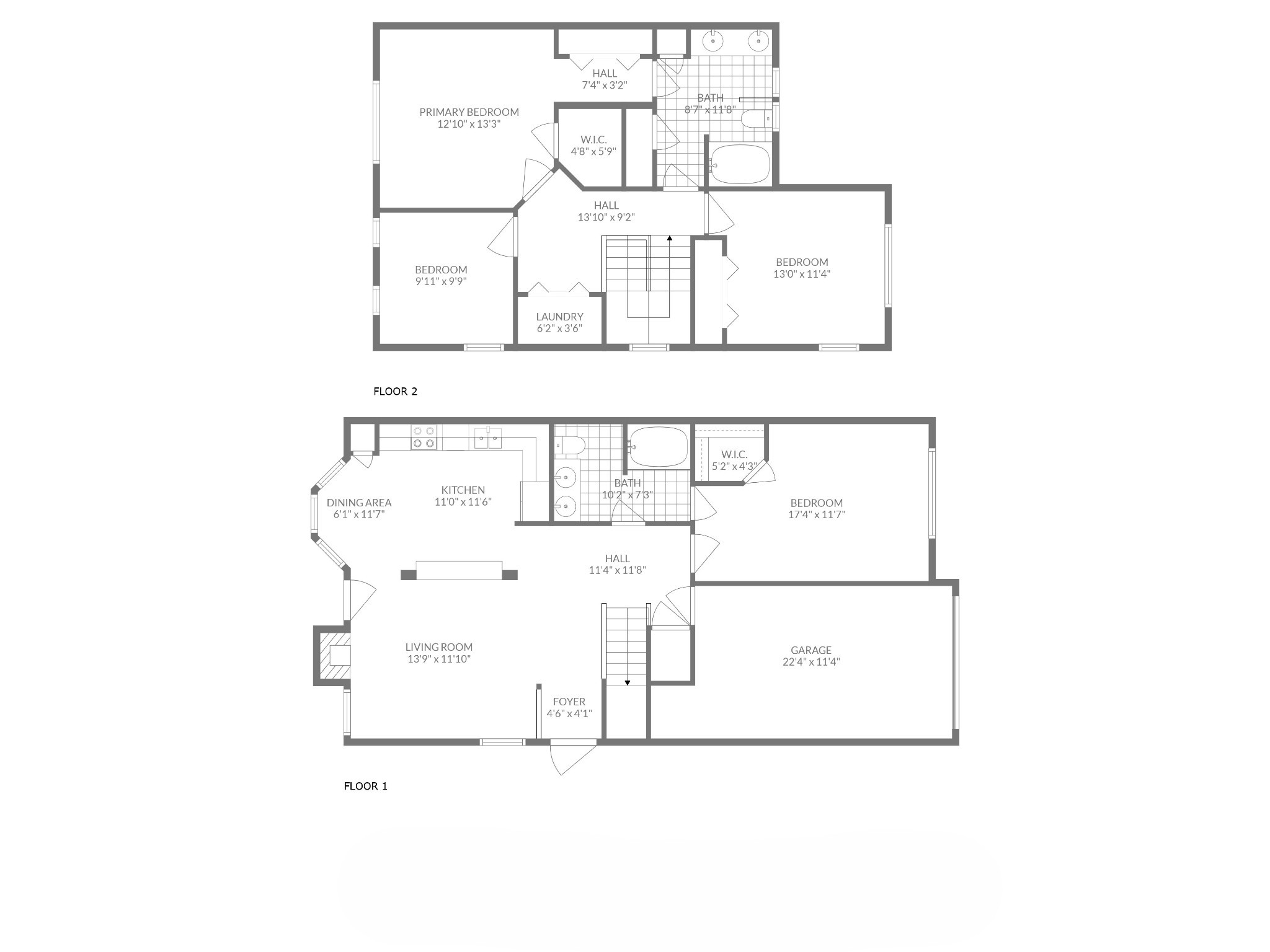
One of only nine units that offer two primary suites. This corner unit boasts an oversized front yard. That's more outdoor space without the maintenance. This unit has it all, style, comfort, and location. Neutral tones throughout the interior allow for your own personal touch when accessorizing. Comfort awaits in the family room with a gas fireplace and a niche for your television and or artwork. Step out of the family room, onto your personal courtyard with fencing for privacy. Spacious eat in kitchen that features a Pass-Thru Window, lots of cabinets, a pantry, stainless-steel appliances, (New Refrigerator) recessed lighting and new granite counter tops. Gas access for optional range conversion. Owners' choice to retreat to the first-floor primary suite with a vaulted ceiling, a walk-in closet, attached bath with double vanity and oversized tub/ shower combo. Venture upstairs and you will find an additional primary suite. This suite features a vaulted ceiling, 2 closets, a walk in and a standard, a large full bath with double vanity and oversized tub /shower combo. Two guest rooms also located on second floor. HVAC installed 2019. Damper System (allows for precise temperature management) added 2020. 40-gallon gas water heater 2020. New carpet installed upstairs. Conveniently located to BNA Airport, Summit TriStar Hospital, shopping, dining, and downtown Nashville. Nestled between Old Hickory and Percy Priest Lake. "Brookside Park" quiet, secluded, easy living!
Water Source : Public
Sewer Source : Public Sewer
Garage On Property.
1 Total Parking
Parking Features : Garage Door Opener
1 Garage Spaces
1 Covered Spaces
Patio And Porch Features : Patio
Roof : Asphalt
Lot Size Source : Calculated from Plat
Property has a View :
Above Grade Finished Area : 1704Square Feet
Property Attached
Cooling in Property:
Cooling: Central Air
Heating in Property:
Heating : Natural Gas
Construction Materials: Brick
Interior Features: Ceiling Fan(s)
Fireplace in Property:
Fireplaces Total : 1
Levels : Two
Appliances : Dishwasher
Laundry Features : Electric Dryer Hookup
Documents Count : 3
Year Built Details : Existing
Water Source : Public
Sewer Source : Public Sewer
Garage On Property.
1 Total Parking
Parking Features : Garage Door Opener
1 Garage Spaces
1 Covered Spaces
Patio And Porch Features : Patio
Roof : Asphalt
Lot Size Source : Calculated from Plat
Property has a View :
Above Grade Finished Area : 1704Square Feet
Property Attached
Cooling in Property:
Cooling: Central Air
Heating in Property:
Heating : Natural Gas
Construction Materials: Brick
Interior Features: Ceiling Fan(s)
Fireplace in Property:
Fireplaces Total : 1
Levels : Two
Appliances : Dishwasher
Laundry Features : Electric Dryer Hookup
Documents Count : 3
Year Built Details : Existing

Street Address: 747 Tulip Grove Rd
City: Hermitage
State: Tennessee
Postal Code: 37076
County: Davidson
Directions: I-40 east to exit 221 A- Old Hickory Blvd, right on Andrew Jackson Pkwy, right on Old Lebanon Dirt Road, left on Chandler Rd, left on Tulip Grove Rd. Brookside Park is on the right

Property Information :
Listing Status: Active
Size: 1,704 Sqft
Lot Size: 0.02 Acres
MLS #: 3006524
Bedrooms: 4 bd
Bathrooms: 2 ba
Price: $345,000
Tax Amount: 1790
Construction Status: Built in 2001
Last Modified : Jan 8 2026 2:07AM
Amenities :
Fireplace

Courtesy of: Lisa Paulson, Benchmark Realty, LLC (MLS# RTC3865)
Source MLS: Realtracs