About 897 12th Street, Hammonton, New Jersey, 08037
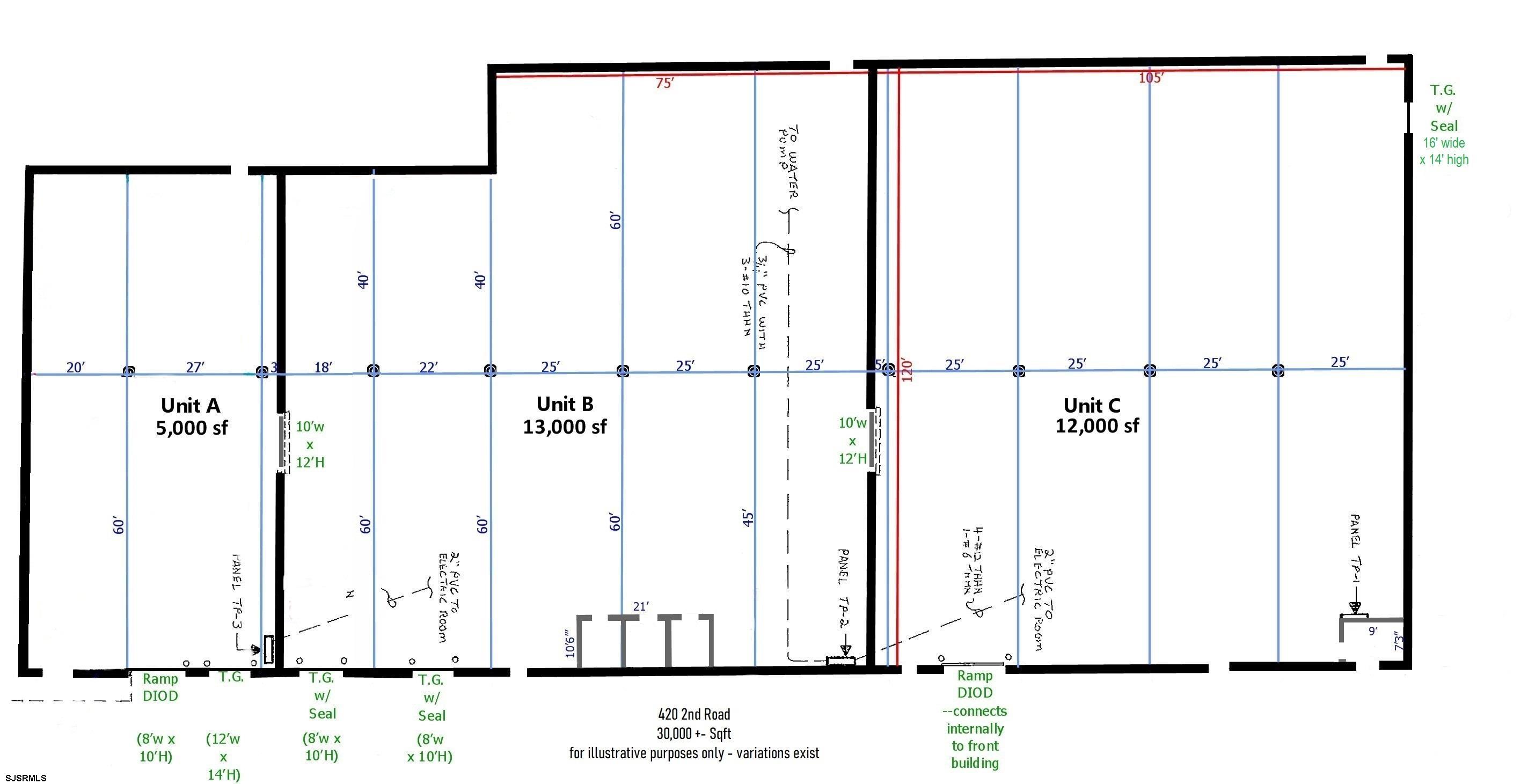
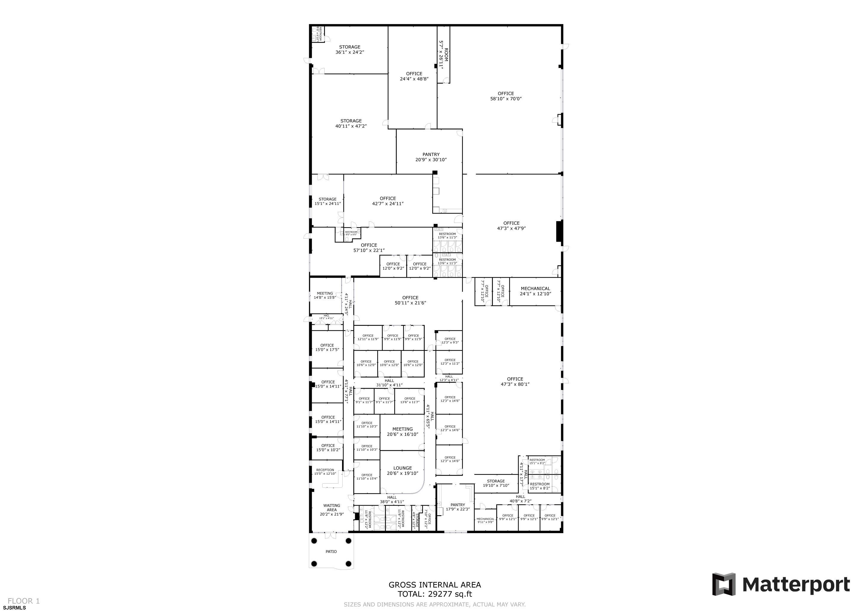
ALERT -- INVESTORS OR LARGE SPACE USERS!! 58,800+- sqft, on 10.75 +- acres at a signalized intersection, just 6/10ths of a mile from AC Expressway Exit #28! The "897" building offers 28,800 sqft of existing Office and Warehouse Space that can occupied early Spring 2025! Ample car and truck parking on-site, and multiple tailgate and drive-in loading doors. Monument signage and frontage on the signalized intersection of 2nd Road & 12th Street (Rt 54). Rooftop Solar Array is subject to a (PPA) Power Purchase Agreement for the occupants in he "897" building. 3-Phase power is available. The 420 Building consists of 30,000 sqft that is fully leased at below market rates that provide some upside upon renewals.
Available : Survey
Water : Public
Sewer : Public Sewer
Parking : 11 or More Spaces, Off Street, Paved
Road Frontage : State
Style : Light Industrial, Office Building, Warehouse
Property Age : 25+ Years
Location : Business District, Highway
Lot Number : 21
Air Conditioning : Central, Multi-Zoned
Heating : Forced Air, Multi-Zoned
Basement Description : Slab
Available : Survey
Water : Public
Sewer : Public Sewer
Parking : 11 or More Spaces, Off Street, Paved
Road Frontage : State
Style : Light Industrial, Office Building, Warehouse
Property Age : 25+ Years
Location : Business District, Highway
Lot Number : 21
Air Conditioning : Central, Multi-Zoned
Heating : Forced Air, Multi-Zoned
Basement Description : Slab

Street Address: 897 12th Street
City: Hammonton
State: New Jersey
Postal Code: 08037
County: Atlantic

Property Information :
Listing Status: Active
Lot Size: 10.75 Acres
MLS #: 591889
Price: $7,965,000
Tax Amount: 101824
Last Modified : Jan 7 2025 5:20AM
Amenities :
Basement

Courtesy of: RICHARD SUTHARD, BALSLEY/LOSCO (MLS# 27)
Source MLS: SJSRMLS