About 21422 Bethel Church Road, Cornelius, North Carolina, 28031
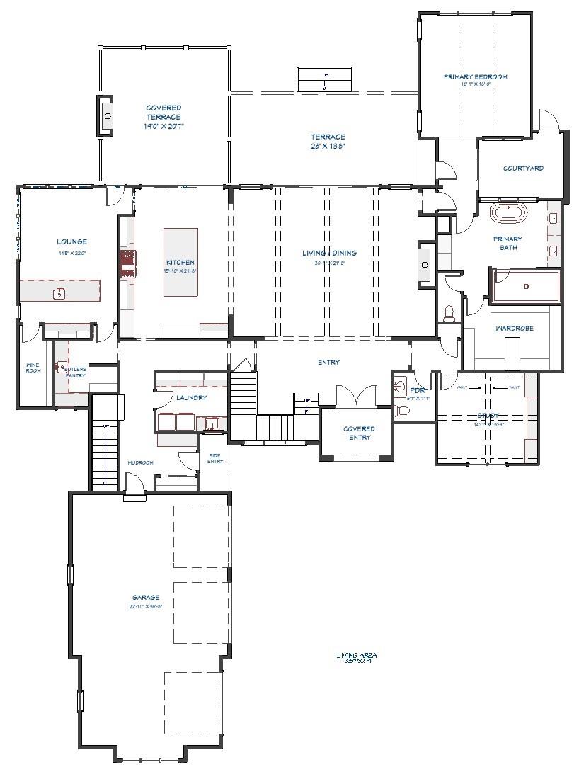
Incredible, vast, waterfront views, from one of the last, pristine lots on LKN. The hallmark of this Modern English Arts & Craft hm has abundance of natural light, showcasing long range views & offers the newest design features. The experience begins w/custom made arched front door & its openness, to the 12’ white oak beamed ceiling @ family/dining rm. Kitchen w/com appliances, quarter sawn white oak island & 12’ ceiling. The primary suite, features private outdoor courtyard that serves as a conduit of light from the bath & bedroom, while maintaining beautiful views. Retire to the lounge w/guests, where the entertainment bar & wine cellar are a key feature. Travel upstairs, via the stair tower, to 3 large en suites w/large views. The upper floor enjoys a library & bonus rm. No HOA!! Don't miss this rare opportunity to build your dream home on LKN! This home is a proposed floorplan & design, according to specs, adjustments can be made as needed/desired. Professional photos will be uploaded on April 7 or 8th.
Room Count : 15
Water Source : City
Sewer System : Public Sewer
Parking Features :
Lot Features : Waterfront
Road Surface Type : Concrete
Architectural Style : Arts and Crafts
Zoning : GR
Heating : Central
Construction Type : Site Built
Construction Materials : Brick Partial
Foundation Details: Crawl Space
Interior Features : Cable Prewire
Fireplace Features : Living Room
Laundry Features : Electric Dryer Hookup
Appliances : Dishwasher
Flooring : Carpet
Main Area : 3287 S.F
Room Count : 15
Water Source : City
Sewer System : Public Sewer
Parking Features :
Lot Features : Waterfront
Road Surface Type : Concrete
Architectural Style : Arts and Crafts
Zoning : GR
Heating : Central
Construction Type : Site Built
Construction Materials : Brick Partial
Foundation Details: Crawl Space
Interior Features : Cable Prewire
Fireplace Features : Living Room
Laundry Features : Electric Dryer Hookup
Appliances : Dishwasher
Flooring : Carpet
Main Area : 3287 S.F

Street Address: 21422 Bethel Church Road
City: Cornelius
State: North Carolina
Postal Code: 28031
County: Mecklenburg

Property Information :
Listing Status: Active
Size: 5,692 Sqft
Lot Size: 0.87 Acres
MLS #: 4365780
Bedrooms: 4 bd
Bathrooms: 4.5 ba
Price: $4,988,400
Construction Status: New Construction
New Construction: Yes
Last Modified : May 16 2026 2:59AM
Amenities :
Fireplace

Courtesy of: Kathy Day, Southern Homes of the Carolinas, Inc (MLS# CAR6457)
Source MLS: CanopyMLS